A typical Helicopter Approach Path Indicator CHAPI setup consists of a series of lights arranged along the approach path. These lights project different colors to indicate the helicopter's position relative to the desired glide path. For instance, a green light signals that the helicopter is on the correct approach path, while a red light indicates that the helicopter is too low. This straightforward color-coded system allows pilots to make real-time adjustments to their descent, ensuring a safe and controlled landing.
The implementation of Helicopter Approach Path Indicator CHAPI systems brings several advantages. Firstly, it significantly improves safety by reducing the likelihood of accidents due to incorrect approach angles. This is crucial in low-visibility conditions, such as at night or in adverse weather, where visual references are minimal. Secondly, CHAPI enhances operational efficiency by allowing pilots to approach landing zones with greater confidence and precision, reducing the time and effort required for safe landings.
CHAPI systems are increasingly adopted in critical areas where precision and safety are paramount. Their role in modern aviation infrastructure underscores the importance of providing reliable and easily interpretable visual guidance to helicopter pilots, ensuring safer and more efficient operations across various challenging environments.

Overview:
Helicopter Approach Path Indicator CHAPI system AO-HP-CHAPI, its full name is Heliport Approach Path Indicators, CHAPI is its short name. The "C"’ in CHAPI stands for ‘Cramp’, the name of person who invented the system 40 years ago. so until now, we still use CHAPI stands for HAPI lights. Our LED CHAPI uses LED technology to provide the pilot with safe and accurate glide slope on final approach to the helipad. A set of two LED CHAPI Light Housing Assemblies (LHAs) are seen by the pilot in combinations of white, green and red to indicate a path that is too high, too low or within the 6° ±0°15′ glide slope. Angle deviations that are too high show one or two white lights, and those that are too low show one or two red lights. HAPI light Visual Indication as follows, one helipad needs 2 pcs HAPI lights:
Compliance:
1. ICAO Annex 14 Volume II Heliports 5.3.
2. FAA AC 150/5390-2B Heliport Design Guide
Features:
1. Adopt super bright brand LED, high intensity with a lower energy consumption.
2. Input voltage available in DC(12-48V DC) or AC(100-265V AC 50-60Hz).
3. Clear polycarbonate lens for converging light and also provides corrosion resistance and UV protection.
4. Efficient photometric design provides excellent light distribution, make sure meet ICAO and FAA demand.
5. Housing material is stainless steel which has strong corrosion resistance, Shock and Vibrations protection.
6. UV protection Powder coated bright yellow color base make better visibility.
7. Fragile coupling reduce the secondary damage to helicopters effectively.
Specification:
|
Product Name |
Helicopter Approach Path Indicator CHAPI system AO-HP-CHAPI |
|
Mode NO.: |
AO-HP-CHAPI |
|
Color: |
White,Green and Red |
|
Light source:
|
LEDs |
|
Body materials: |
Stainless steel |
|
Leg Materials: |
Die casting aluminum with Fragile coupling |
|
Installation type: |
Surface mounting |
|
Flashing Characteristics:
|
steady burning with fixed light
|
|
Operation Mode: |
24 hours after power on |
|
Input: |
100-240VAC 50-60Hz, 12-48VDC(Details contact us) |
|
Power Consumption(W): |
Average Power consumption <20W |
|
Circuit Protection: |
Integrated |
|
Helipad Light Material: |
lens and Powder coated Stainless steel |
|
Weight(kg): |
10kg |
|
IP Grade: |
IP65 |
|
Work environment: |
-50℃~+60℃, Humidity 0%-100% |
|
Optional functions(Separate charges): |
1. VHF pilot to ground remote control 2. Clinometer 3. Solar powered system |
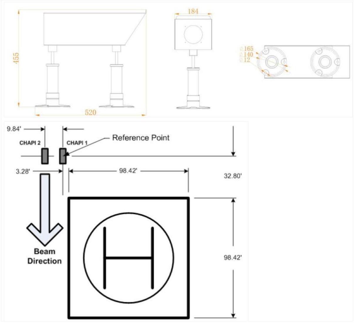
Dimension & Installation:
The recommended location for installing the CHAPI Light is shown in above picture. The size of the helipad is dependent on your location and the maximum rotor diameter. The 3.28 foot dimension listed is important to help locate the CHAPI nearest the helipad and assist helicopter pilots. After the elevation and exact physical location of the light boxes, then mount the light boxes on the pads.
Applications:
Helicopter Approach Path Indicator CHAPI system AO-HP-CHAPI is sued to glide slope on final approach to the helipad, it needs to use with other helipad light. Normally a helipad needs 2 pcs CHAPI light. The Helicopter Approach Path Indicator (CHAPI) is primarily utilized in high-risk and complex environments where precise landing guidance is essential for safety. Key application areas include:
1. Hospital Helipads: CHAPI systems are crucial for medical emergency services, ensuring safe landings on hospital rooftops or ground-based helipads, especially in urban settings where space is limited and obstacles are numerous.
2. Offshore Platforms: On oil rigs and other offshore installations, CHAPI provides vital visual cues to pilots, facilitating safe approaches and landings amidst challenging sea and weather conditions.
3. Urban Helipads: In densely populated urban areas, CHAPI systems help pilots navigate through skyscrapers and other structures to land safely on designated helipads.
4. Military and Rescue Operations: CHAPI is used in military bases and during search and rescue missions, providing clear guidance in various terrains and under different operational scenarios.
5. Remote and Mountainous Areas: In remote locations and mountainous regions, where traditional navigational aids might be lacking, CHAPI enhances safety by providing reliable approach path indicators.These applications highlight CHAPI's role in enhancing the safety and efficiency of helicopter operations in diverse and demanding environments.





















